Nội dung chính
Thang máy 1000kg là dòng thang máy có tải trọng lớn, cabin rộng có thể chở được nhiều người, nhiều hàng hóa trong một lần di chuyển. Dòng sản phẩm này là một công cụ hỗ trợ đắc lực trong việc vận chuyển người và hàng hóa đến các vị trí trong tòa nhà cao tầng một cách nhanh chóng, an toàn, thao tác đơn giản chỉ với 1 nút bấm.
Thang máy tải trọng 1000kg thích hợp lắp đặt cho những công trình lớn như: trung tâm thương mại, chung cư, siêu thị, biệt thự sang trọng, khách sạn lớn, nhà kho, nhà xưởng, khu chế xuất, … với tần suất sử dụng 24/ 24.
Kích thước công suất thang máy 1000kg
Dòng thang máy nâng hàng 1000kg phù hợp cho công trình nào?

Theo kinh nghiệm nhiều năm trong ngành thang máy, chúng tôi lắp đặt kha khá thang máy tải trọng 1000kg. Nên cũng nắm được một ít công trình phù hợp với mức tải trọng này.
Các công trình phù hợp sử dụng:
- Tòa nhà cao tầng: thường được trang bị theo dạng block, mỗi block gồm 3 đến 4 thang.
- Các toàn nhà văn phòng: thường trang bị 2 đến 3 thang.
- Bệnh viện: trang bị khoảng 3 thang 1 block
- Tòa nhà mini: thường trang bị thang, tải được khoảng 15 người.
Đối với những công trình nhỏ hơn thì nên lắp thang máy có mức tải trọng thấp hơn, để tránh lãng phí tiền và không gian công trình.
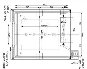
Kích thước thông số kỹ thuật thang máy 1000kg

- Tải trọng: 1000kg
- Số người có thể chở: 14 – 15 người
- Thương hiệu: Mitsubishi
- Tốc độ: 60 m/p, 90 m/p
- Động cơ: 11 Kw
- Kiểu mở cửa: CO (mở trung tâm)
- Nguồn điện: 3 phase, 380 VAC, 50 Hz
Tốc độ 60m/p
- Kích thước hố thang: 2000mm x 2100mm
- Kích thước cabin: 1600mm x 1500mm
- Kích thước cửa: 900mm x 2000mm
- Chiều cao OH: 4200mm
- Chiều sâu hố PIT: 1500mm
Tốc độ 90m/p
- Kích thước hố thang: 2200mm x 2400mm
- Kích thước cabin: 1800mm x 1700mm
- Kích thước cửa: 1000mm x 2000mm
- Chiều cao OH: 4500mm
- Chiều sâu hố PIT: 1600mm
Các lưu ý khi chọn lắp đặt thang 1000kg
Lưu ý khi lắp đặt thang máy 1000kg

Chủ nhà cần thông báo tới đơn vị thực hiện công tác lắp đặt thang máy tới nghiệm thu, kiểm tra hố thang sau khi hố thang đã được xây dựng xong, thời gian là trước khoảng 15 ngày. Việc kiểm tra trước sẽ tạo điều kiện cho công tác lắp đặt sau này được diễn ra thuận lợi, bên cạnh đó giúp cho hố thang có được chất lượng tốt nhất.
Chú ý về thời gian cung cấp điện cũng như nguồn điện cung cấp cho thang máy. Yêu cầu đối với chủ công trình là trước thời điểm đơn vị cung cấp thang máy tới tiến hành lắp đặt trước 3 ngày, cần chắc chắn có thể cung cấp nguồn điện 3 phase tới phòng máy. Đồng thời để đảm bảo an toàn cần đảm bảo phải trang bị có thiết bị ngắt điện là CB hoặc cầu dao.
Chuẩn bị trước kho chứa hàng để có ngay không gian chứa đồ khi đơn vị cung cấp vận chuyển thang máy với kích thước thang máy 1000kg tới ngôi nhà của bạn. Yêu cầu phải là nơi khô ráo, thoáng mát để tránh những tác nhân, ảnh hưởng từ bên ngoài có thể ảnh hưởng tới chất lượng của thiết bị.
Thang máy sau khi được hoàn thành lắp đặt cần được trát lại phần cửa của thang máy và thực hiện công tác ốp đá. Đây là công việc mà chủ nhà cần phân công người thực hiện hoặc tự tiến hành để có thể nhanh chóng đưa thang máy vào sử dụng trong thời gian sớm nhất.
Khi lắp đặtthang máy gia đình, thang máy chung cư để có được hiệu quả cao nhất cần đảm bảo có sự phối hợp hài hòa giữa đơn vị cung cấp và chủ nhà. Chính sự liên kết, hợp tác và phân công công việc rõ ràng giữa hai bên là yếu tố quan trọng giúp cho thang máy được đưa vào mỗi công trình đạt chất lượng cao và nhanh chóng nhất, hạn chế những rủi ro, khó khăn có thể xảy ra làm ảnh hưởng tới quá trình sử dụng thang máy của con người.
Công suất thang máy 1000kg

Lựa chọn loại thang máy
Trên thị trường hiện nay, kích thước thang máy 1000kg thường có 2 loại để bạn lựa chọn, đó là thang ngoại nhập và thang máy liên doanh (nhập khẩu thiết bị chính hãng từ nước ngoài và đồng bộ tại Việt Nam).
Vị trí đặt hố thang máy
Vị trí đặt hố thang máy ngoài việc đáp ứng như cầu đi lại thế nào cho thuận tiện còn phải đạt tính thẩm mỹ cao và phù hợp với cấu trúc chung của ngôi nhà. Chủ đầu tư có thể tham khảo, nghiên cứu các phương án từ bộ phận thiết kế kiến trúc, sau đó lựa chọn phương án tối ưu và khả thi nhất cho công trình của mình.
Chú ý: hố thang có phòng máy khác với hố thang máy không phòng máy.
Lựa chọn vật liệu, mẫu mã sản phẩm thang máy
Chủ yếu là mẫu mã cabin, vật liệu phòng thang (cabin), mặt button, đèn… Quý khách hàng có thể lựa chọn tùy theo khả năng tài chính và mục đích sử dụng của mình.
Vị trí tập kết vật liệu thang máy
Chủ đầu tư cần bố trí vị trí tập kết sao cho hợp lý trước khi vật liệu được đưa đến công trình. Yêu cầu vị trí tập kết đảm bảo không mất mát vật liệu, đồng thời phải khô ráo.
Trước khi đưa vào nơi tập kết cần kiểm tra thiết bị và vật tư cẩn thận để tránh trường hợp giao thiếu gây tranh cãi sau này.
Sắp xếp các thiết bị trong kho một cách thích hợp, đồ nào làm sau, để quá trình lấy ra nhanh chóng và không bị nhầm lẫn thì đồ nào làm trước cần rõ ràng theo thứ tự.
Trong quá trình xây dựng hố thang máy
Cần kiểm tra và đo đạc kích thước hố thang máy gia đình cẩn thận và chính xác. Nếu để hố thang quá nghiêng sẽ ảnh hưởng trực tiếp tới chất lượng sản phẩm, khi lắp đặt cũng sẽ rất khó khăn.
Kiểm tra lại giếng thang và buồng thang trước khi tiến hành lắp thang máy, cần nghiệm thu buồng thang và giếng thang máy đạt tiêu chuẩn mới thực hiện lắp thang.
Trong quá trình lắp đặt thang máy
Cần tuân thủ đúng theo quy định đối với công tác lắp đặt, trong quá trình lắp cần theo dõi quản lý. 50% quyết định thang máy hoạt động có bền bỉ êm ái hay không là ở khâu này.
Trước khi bàn giao
Trước khi bàn giao công trình cần kiểm định chất lượng thang. Ngoài ra chủ nhà trước khi vận hành thang máy cũng cần đọc kỹ hướng dẫn sử dụng.
Báo giá thang máy 1000kg

Mitsubishi là một thương hiệu nổi tiếng trên thế giới mà chắc hẳn ai cũng đã từng nghe qua trong các lĩnh vực như: đồ điện tử, đồ gia dụng, ô tô, điều hòa, … và thang máy. Sản phẩm thang máy Mitsubishi nổi bật với chất lượng cao, êm, bền, mẫu mã đa dạng, mang đến sự sang trọng và hiện đại trong từng công trình lắp đặt.
Phù hợp cho các công trình to lớn nhiều tầng,… với sức chứa 1000kg (13 đến 15 người tối đa).
Giá thang máy Mitsu 1000kg cho phòng máy mới nhất: 420 triệu.
Giá thang máy Mitsu 1000kg liên doanh mới nhất: chi phí 500 triệu, chi phí còn có thể thay đổi nếu bạn yêu cầu thiết kế nội thất riêng cho thang.
Giá thang máy Mitsu 600kg nhập khẩu mới nhất: 900 triệu đến 1 tỷ 200 triệu là chi phí ổn định của loại thang này, đôi lúc sẽ thay đổi do hệ thống tiền tệ thế giới.
Ngoài ra chúng tôi còn có các dòng thang máy fuji, thang máy hitachi,… đều là các dòng thang máy nổi tiếng và chất lượng.
Để tham khảo giá hoặc mua thang máy, linh kiện thang máy tại CÔNG TY TNHH PHÁT TRIỂN CÔNG NGHỆ NGUYỄN NGỌC liên hệ :
- Hotline 1: 091 753 6668
- Hotline 2: 028 73022888
- Địa chỉ: 52 Đông Du, Phường Bến Nghé, Quận 1, TP.Hồ Chí Minh
- Email: info@safelift.vn